Helga Urban Design

Міське планування Проєкти

Location

Львів, вулиця Княгині Ольги, 120

Year

2021 - 2025

Area

4 230 m2

Житловий комплекс Helga розташований на зручному перехресті вулиць Наукової та Княгині Ольги, що забезпечує легкий доступ до важливих точок міста: аеропорту імені Данила Галицького, центру міста та залізничного вокзалу. В пішій доступності також є чимало закладів соціальної інфраструктури, торгівлі та розваг. Однак, його привабливість не обмежується лише географічним положенням.
Проект Helga перевершує стандартні підходи до міського планування, пропонуючи не просто поєднання житла та комерції, але й створення нового, інтегрованого міського середовища, яке сприяє розвитку бізнесу та підвищенню якості життя. Відмовившись від типовості та монотонності, комплекс Helga втілює сучасні урбаністичні тенденції, де взаємодія різних функцій формує гармонійне та динамічне середовище для життя у великому місті.

Перед проєктом стояла задача, яка виходила за межі просто «красивого благоустрою». Йшлося про реабілітацію середовища, яке було у тіні власної утилітарності. Простір, який був покликаний обслуговувати, мав жити та взаємодіяти.

Проєкт відповідає на це:

  • людиноцентричністю:  фокус на тому, як простір проживається, а не як виглядає на кресленні;
  • соціальною відкритістю: можливість використовувати простір усіма — від працівників БЦ до мешканців сусідніх кварталів;
  • гнучкістю сценаріїв: від короткого перепочинку до публічних заходів;
  • інтеграцією із природою: простір не конкурує з ландшафтом, а формує його наново, з урахуванням біорізноманіття.

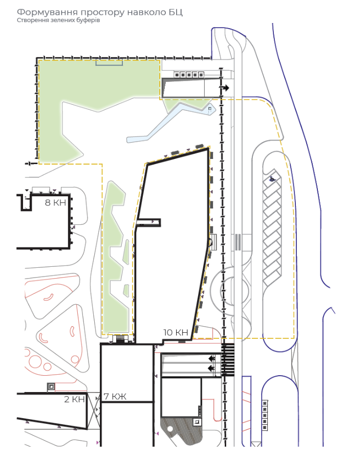
Тому серцем комплексу постає громадська площа, що сформована біля будівлі бізнес-центру. Вона постає на перетині основних шляхів та оповита зеленим пагорбом, що слугує чудовим буфером між суміжними ділянками. Фонтан-водоспад та сонцезахисні перголи, що розташовані на площі, виступають не лише як естетичний акцент, але й як ключові елементи громадського простору. Вигляд фонтану та його легке бризкання води створюють відчуття затишку та комфорту, надаючи мешканцям можливість насолоджуватися елементом природи прямо в центрі міського середовища, а сонцезахисні елементи дозволять перебувати на площі навіть у спекотну погоду. Такі простори стимулюють соціальні взаємодії, адже приваблюють мешканців до спільного часопроведення та відпочинку, тим самим сприяючи формуванню локальної спільноти та підвищенню якості життя.

У своїй суті архітектура бізнес центру – стримана і впевнена, але простір, що є навколо залишається вторинним: не функціональним, транзитним, без рис справжнього міського середовища. До будівництва тут домінували сервісні проїзди, паркування та просторова «порожнеча». 

Завданням стало не лише поліпшити благоустрій, а передусім — перетворити оточення бізнес-центру на громадський простір, який буде вільно інтегрований у тканину району, доступний для мешканців, і комфортний для щоденного перебування.

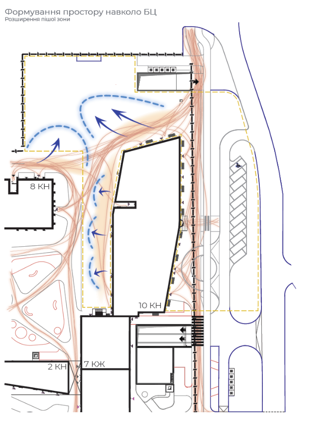
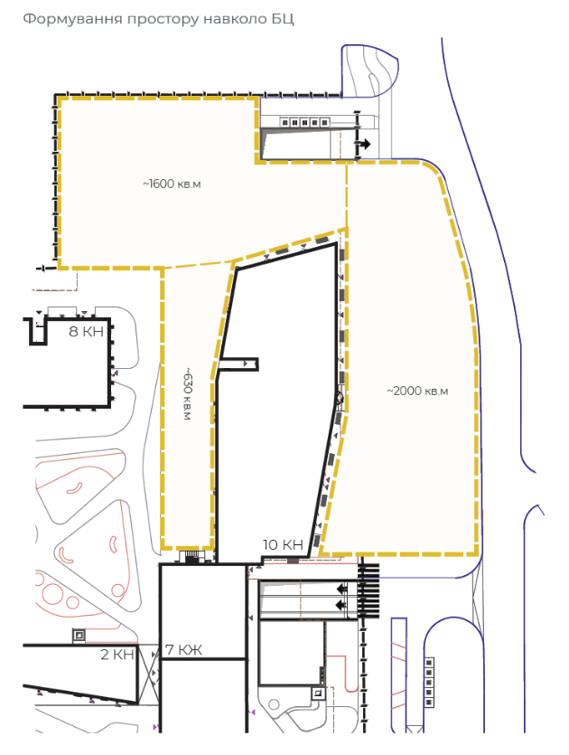
Територію опрацювання відповідно до поділу території комплексу було поділено на три зони: вуличну, громадську площу, та відпочинкову. 

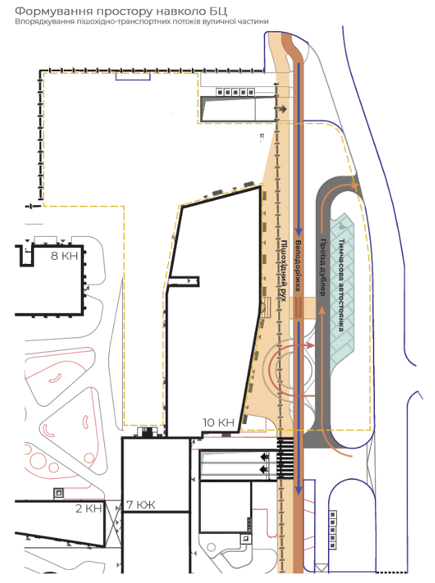
Вулична зона є архіважливою для зв’язку комплексу з міським середовищем. Пішохідні маршрути, які раніше виникали стихійно, автомобільний рух, який блокувався хаотичним паркуванням, були впорядковані й підсилені — тепер це продумана мережа, яка зв’язує бізнес-центр із сусідніми житловими кварталами. З’явилися велодоріжка, променадна частина та буферний дублер-проїзд із організованим паркуванням, який забезпечує обслуговування, не порушуючи людський масштаб.

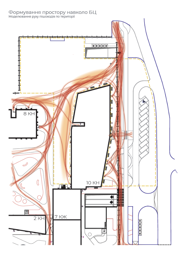
Формування громадської площі та відпочинкових зон здійснювалось на основі моделювання пішохідних потоків.  Таким чином ми досягли чітко вибудуваних меж: транзитні зони, місця для відпочинку, тактильна взаємодія з простором. Навіть коротке перебування тут має залишати приємне враження, а довше – створювати звичку. Також територію доповнено кишеньковим парком, лінійними посадками дерев, яке створює відчуття захищеності та природної різноманітності. а додавання фонтану повинно сприяти охолодженню в спеку і сприяти кращому мікроклімату. 

Команда проєкту:
  • Антон Войташек
  • Марія Щербакова