Lennona Residents

Житлові будівлі Проєкти

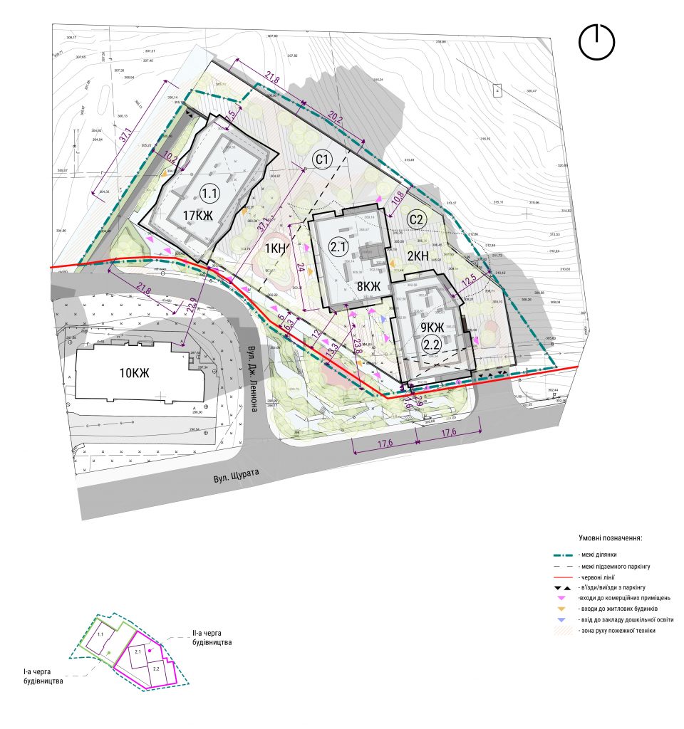
Location

Львів, вулиця Джона Леннона, 2

Year

2022 - по нині

Area

20 506 m2

Ділянка з багатофункційним комплексом знаходиться у дуже зеленій, рельєфній та тихій локації на півночі Львова. Комплекс складається з трьох житлових секцій: двох частково зблокованих восьмиповерхових та шістнадцятиповерхової, що зв’язані спільним стилобатом, котрий містить приміщення з громадськими та комерційними функціями. На стилобаті розміщується затишний двір для мешканців з різноманітними майданчиками та озелененням.

Об’єми будівель з їх фасадами вирішені у контрастний спосіб для восьмиповерхових та шістнадцятиповерхової секцій: стримані, прагматичні нижчі та динамічна акцентна багатоповерхова. Так само контрастними ці будинки є і по своїй ціннісній суті – це і про затишне середньоповерхове житло у негаласливому місці, і про панорамно-видові квартири на тій висоті, що дозволяє споглядати за бурхливим міським життям центру.

Команда проєкту:
  • Микита Макухін
  • Ірина Євочка
  • Богдан Думіч
  • Олександр Нікіфоров
  • Тетяна Семенченко
  • Наталя Джелеп