Клініка Святої Параскеви

Громадські будівлі Медицина Проєкти

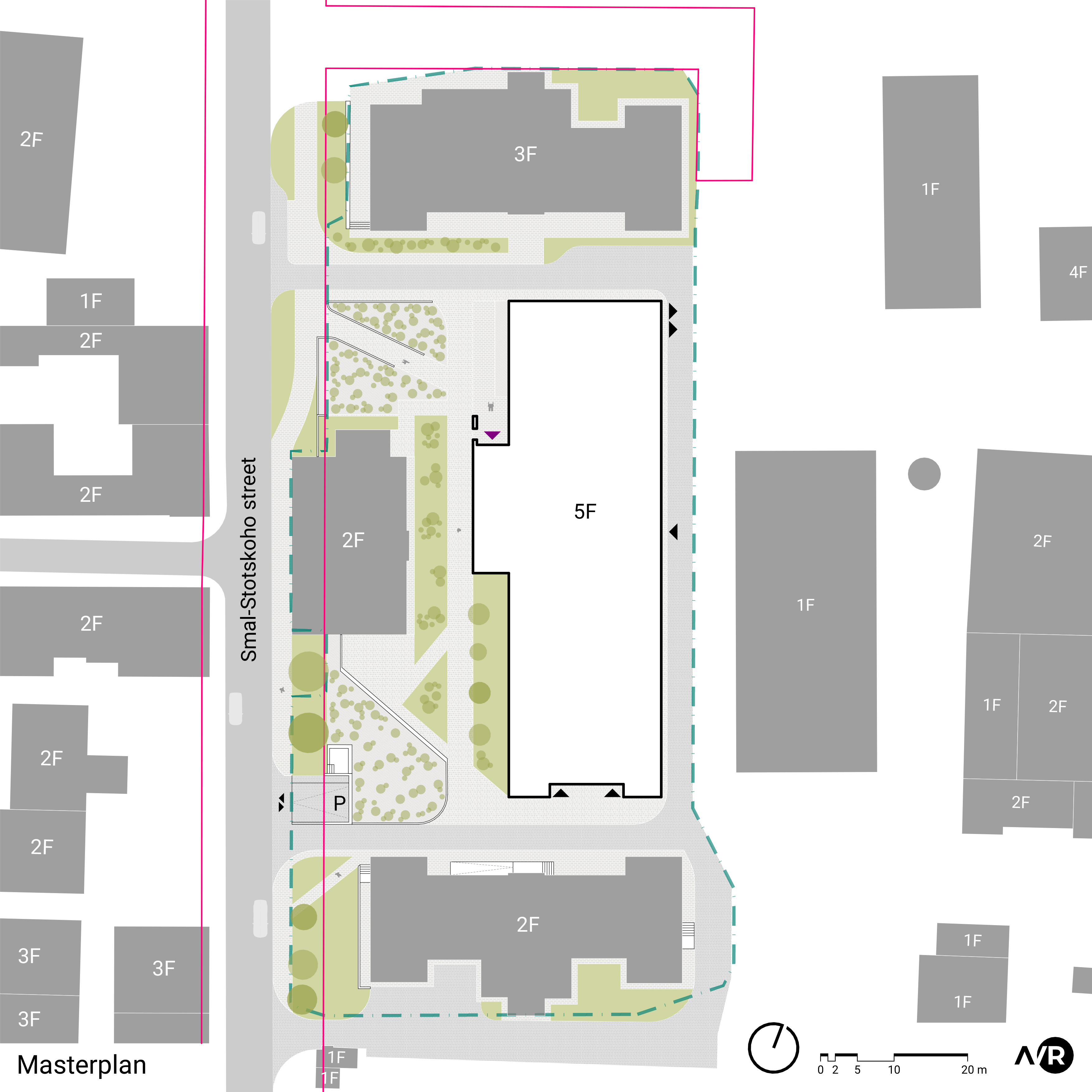
Location

Львів, вулиця Смаль-Стоцького, 13

Year

2019 - 2023

Area

14 900 m2

Проєкт інтегровано в історичний ансамбль колишнього шпиталю Антона та Валерії Білінських, будівлі якого розташовані по периметру прямокутника, утворюючи внутрішній двір. Архітектурне рішення поєднало реставрацію будівель XIX століття з новим медичним корпусом — для збереження культурного контексту та створення сучасного простору для пацієнтів і персоналу.

Новий медичний корпус розміщує приймальне та поліклінічне відділення, палати тимчасового перебування, операційний блок із трьома асептичними операційними та приміщенням для підготовки пацієнтів до операції, відділення реанімації та інтенсивної терапії, рентгенівське відділення, клініко-діагностичну лабораторію, ендоскопічне відділення, центральне стерилізаційне відділення, адміністративні та побутові приміщення.

Усі відділення проєктувалися як окремі зони. Команда архітекторів і дизайнерів опиралася на досвід медиків і зробила все можливе, щоб відтворити шлях пацієнта всередині закладу. Завдяки цьому простір сприймається інтуїтивно навіть під час першого візиту.

У березні 2022 року будівництво було призупинено через війну, однак до літа 2023 новий корпус ввели в експлуатацію.

Проєкт продовжив понад десятирічну діяльність Медичного центру Святої Параскеви, що має кілька філій у Львові й обслуговує понад 700 пацієнтів щодня. Новий центр став важливим інфраструктурним кроком, який поєднав історичну спадщину із сучасністю.

Команда проєкту:
  • Володимир Йосипчук
  • Юліан Чаплінський
  • Дарія Кравець
  • Оксана Швець
  • Катерина Ковальчук
  • Олена Коломієць
  • Маркіян Пахольчак
  • Євген Доля
  • Анатолій Бубряк