Nobl

Громадські будівлі Житлові будівлі Проєкти

Location

Львів, проспект В'ячеслава Чорновола, 65

Year

2024-2028

Area

14 820 m2

Багатофункційний комплекс «Nobl» – це яскравий приклад архітектури змішаного використання у жвавій міській локації. На першому стилобатному рівні та частині другого розташовується громадська частина з комерційними приміщеннями різного призначення, від другого до сьомого – квартири.

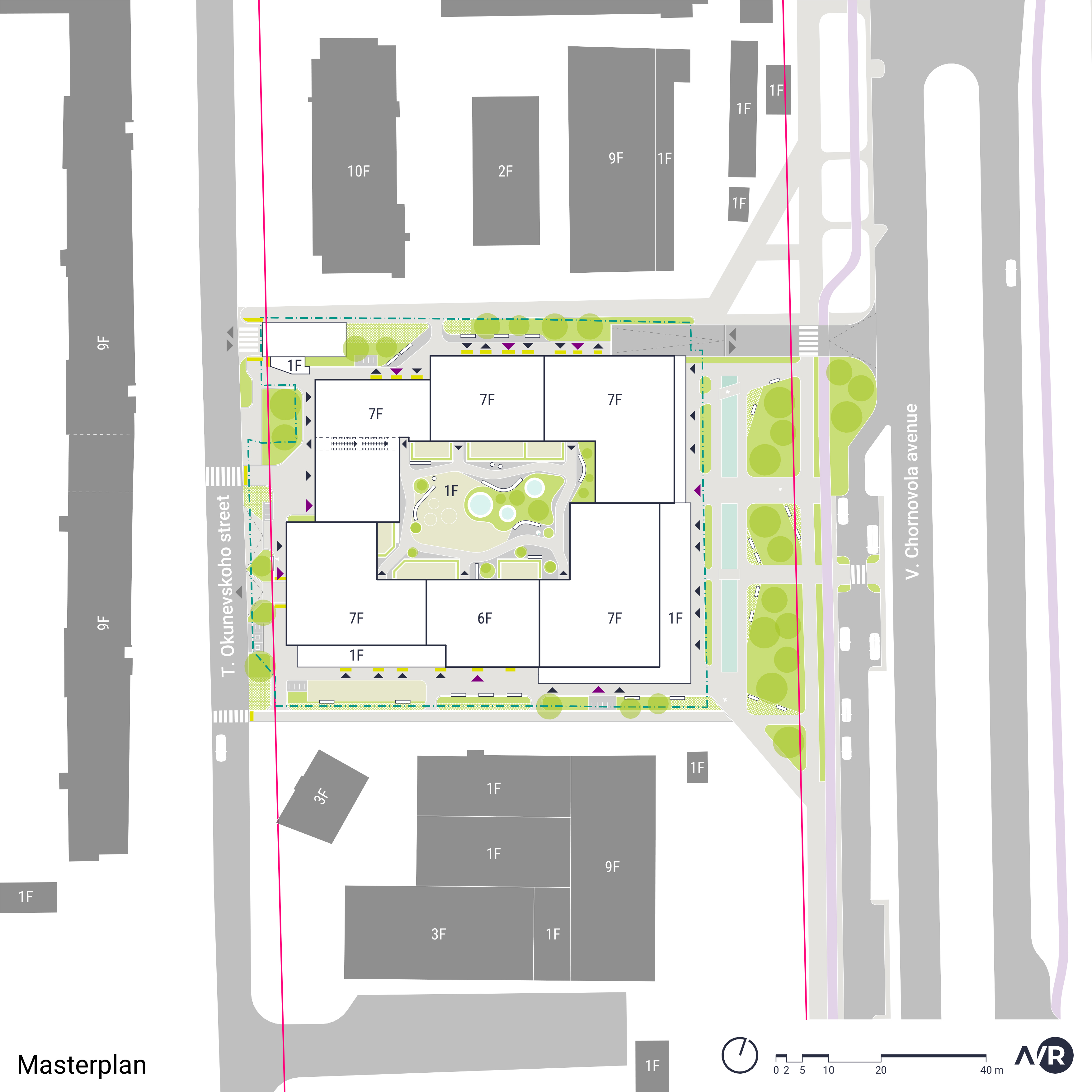
Перший поверх пронизує торгова галерея, що поєднує проспект Чорновола з вулицею Окуневського та стає новим активним пішохідним зв’язком між цими міськими артеріями.

Перед об’єктом сформовано рясно озеленений громадський простір з місцями для відпочинку, що слугуватиме буфером від насиченого трафіку проспекту Чорновола. Також на даній площі облаштовано лінійний декоративний басейн, що стане елементом ознакування річки Полтви, яка тече у колекторі під цією площею.

Перед нашою командою стояла задача створити унікальний за архітектурним образом об’єкт. З обох боків на проспекті Чорновола він фланкується радянськими офісними будівлями з плоскими фасадами, тому задля контрастної взаємодії фасади «Nobl» мають яскраво виражену пластику. За рахунок прогортання площин міжвіконних простінків під різними кутами створюється відчуття динамічної поверхні, що видозмінюється в різний час світлового дня.

Громадська частина артикульована різнорівневими колонадами та суцільним фасадним склінням.

Комплекс «Nobl» знаходиться у Шевченківському районі Львова, у його діловому центрі, що насичений автомобільними та пішохідними потоками, які створюють значне шумове навантаження на ділянку проєктування. Тому морфологічно було обрано рішення використати повністю закритий квартал, що сформує шумозахищений двір для мешканців. Він піднятий на рівень стилобату, тобто на його відмітці будівлі сягатимуть 5-6 поверхів при розмірі двору 26 х 37 метрів, що створюватиме гуманне та затишне середовища для прогулянок і відпочинку мешканців.

Під усією ділянкою проєктування розміщується дворівневий підземний паркінг на 247 машино-місць, який повністю забезпечує потребу у паркомісцях як для мешкантців, так і для громадських закладів. В’їзд до нього відбувається з проспекту Чорновола та вулиці Окуневського через двосмуговий підземний прокол на півночі ділянки.

Команда проєкту:
  • Богдан Думіч
  • Олександр Нікіфоров
  • Микита Макухін
  • Марія Щербакова
  • Володимир Йосипчук
  • Наталія Джелеп