Центр Надання Адміністративних Послуг

Громадські будівлі Проєкти

Location

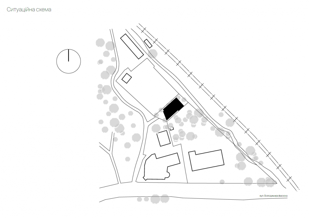
Брюховичі, вулиця Володимира Івасюка, 2-А

Year

2018 - 2020

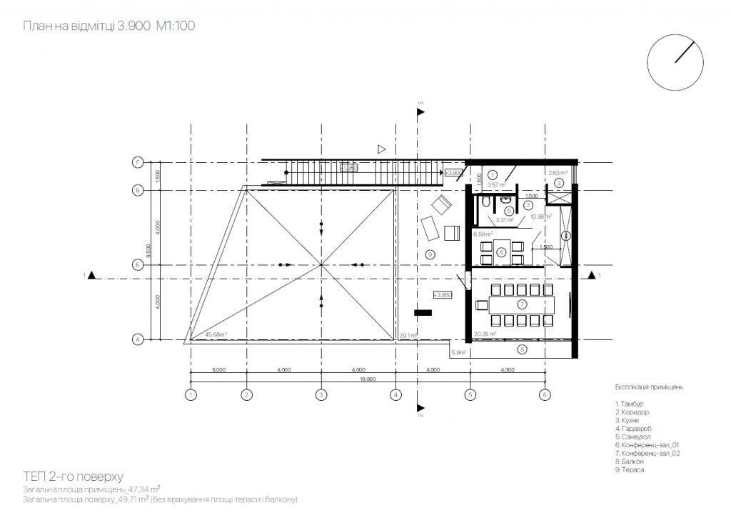
Area

210 m2

Напевно, це найменший наш проект, за який ми взялись через те, що громадські проекти, що служать інтересам громадян, є безперечним пріоритетом для нас. У 2015 в Україні провели реформу децентралізації і селище Брюховичі стало частиною Львівської міської громади. Так виникла потреба у створенні в селищі окремого Центру надання адміністративних послуг, щоби вони не їздили в центр Львова.

Ми працювали над створенням такого Центру в Брюховичах на замовлення Львівської міської ради. Крім безпосередньо зали для роботи з клієнтами та санвузлів, проектом ми передбачили медіатеку з терасою серед живописного соснового лісу.