Administrative Service Centre

Projects Public buildings

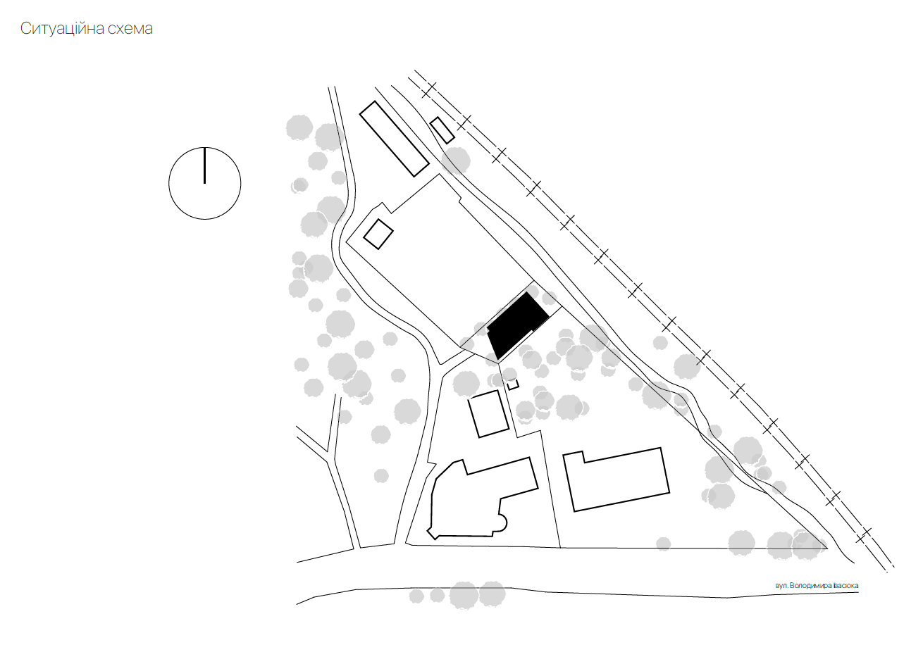
Location

Bryukhovychi, 2-A Volodymyra Ivasyuka Street

Year

2018 - 2020

Area

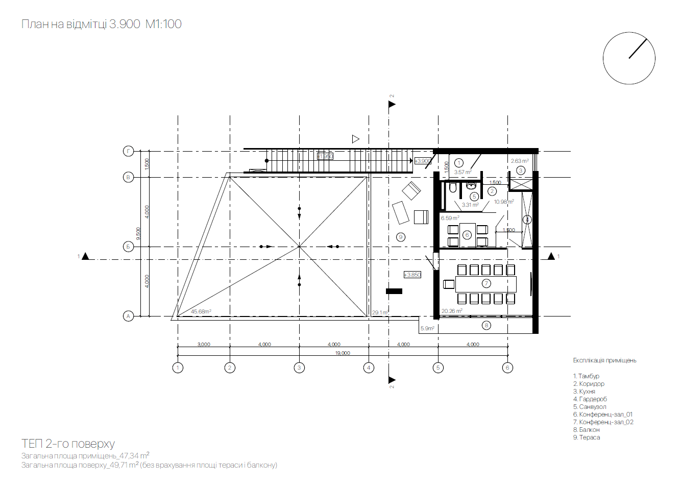
210 m2

Possibly our smallest project, yet driven by our unwavering commitment to public initiatives serving the interests of citizens, we undertook the design of this service center. In 2015, a decentralization reform took place in Ukraine, and the village of Bryukhovychi became part of the Lviv Amalgamated Territorial Community. This led to the need for providing administrative services to the local residents.

To ensure that residents didn’t have to travel to the center of Lviv for such services, the municipal administration decided to construct a center for administrative services. In addition to dedicated client service areas and restrooms, the project also includes a multimedia library with a terrace amid a picturesque pine forest..