Кінескоп

Житлові будівлі Проєкти

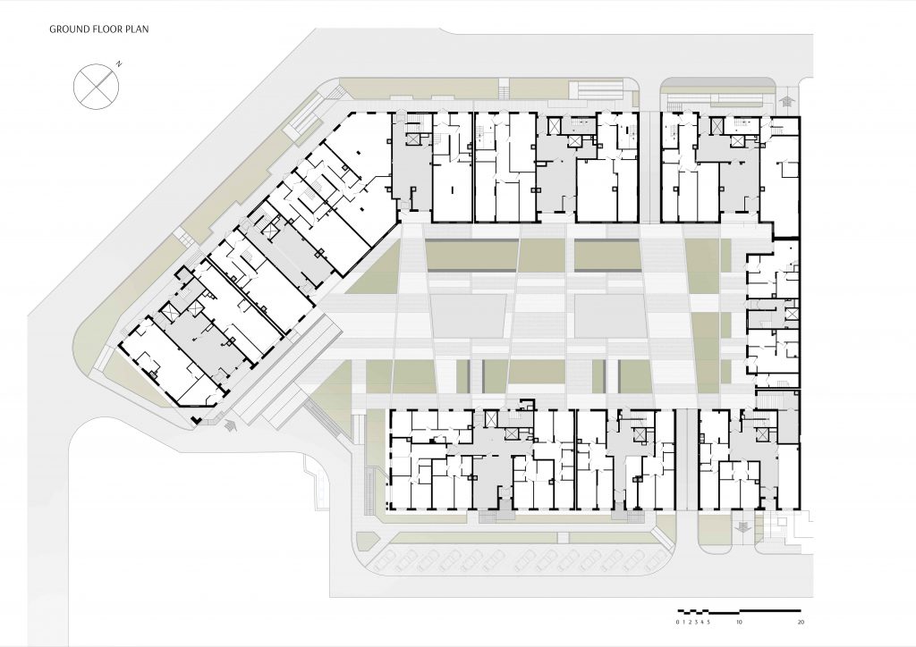
Location

Львів, вулиця Героїв УПА

Year

2015 - 2020

Area

30 000 m2

Назва проекту походить від назви колишнього заводу, який розташовувався в безпосередній близькості до історичного центру Львова.

Територія промислового комбінату та його споруди отримали десятки нових власників і після розпаду СРСР були переобладнані під нові потреби.
Більшість будівель і споруд перетворено в офісні будівлі, також тут багато кафе, приватних медичних закладів, спортивних залів та майстерень, складів та магазинів.