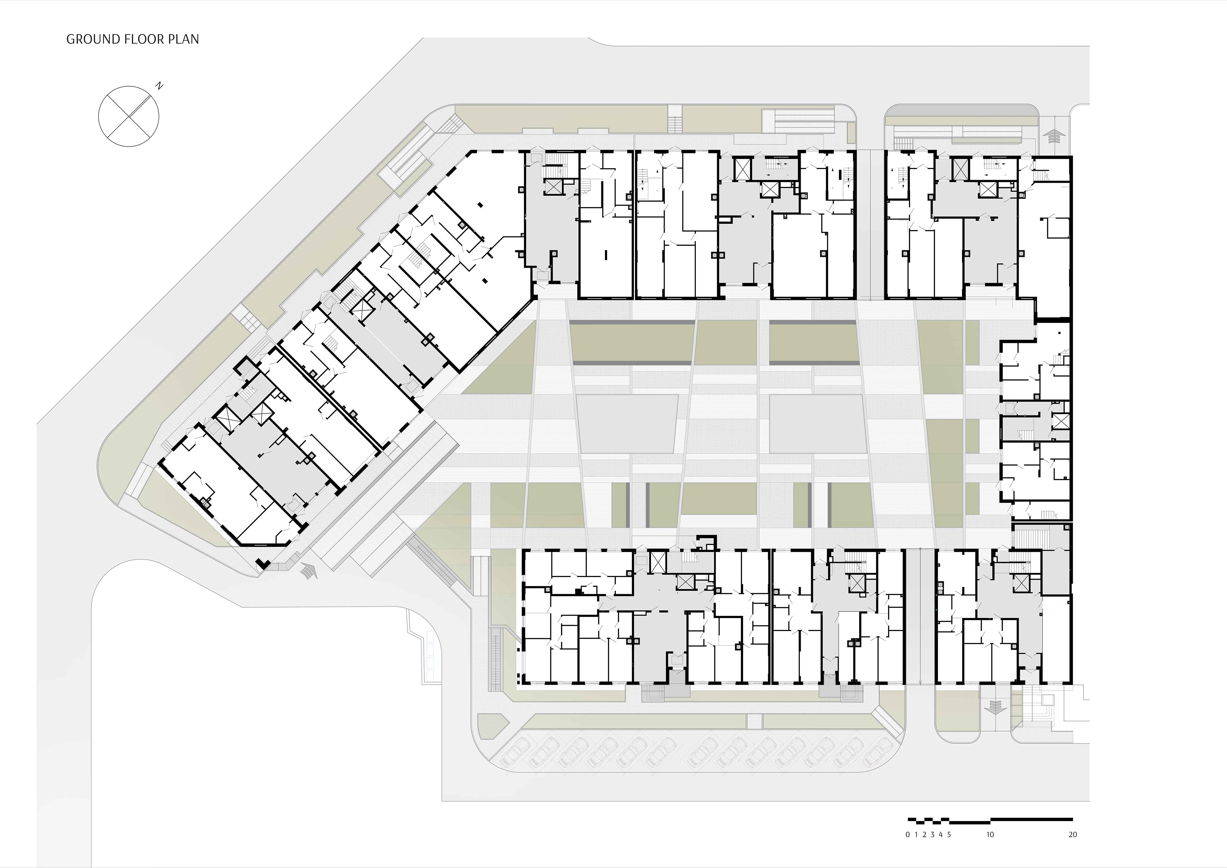
Kineskop

Projects Residential buildings

Location

Lviv, Heroiv UPA Street

Year

2015 - 2020

Area

30 000 m2

The project name comes from the former factory name, which was located in close proximity to the historic center of Lviv.

The territory of the industrial plant and its facilities received do-zens of new owners and were redesigned for new needs after the dissolution of the USSR.
Most of the buildings and structures have been transformed into office buildings, as well as many cafes, private medical facilities, gyms and workshops, warehouses and shops.