Lagom Unique

Житлові будівлі Проєкти

Location

село Сокільники, Львівська область

Year

2024 - 2027

Area

4306 m2

Lagom UNIQUE — комплекс преміум-резиденцій, архітектура яких вибудовує тонкий діалог між людиною та природою. Проєкт сформований навколо ідеї максимального контакту з ландшафтом за умови збереження приватності та внутрішнього комфорту кожного мешканця.
Комплекс розташований на живописній території з власним озером у передмісті Львова — в селі Сокільники. Природне оточення стає повноцінною частиною архітектурного сценарію: з ділянки відкриваються панорамні види на сільський ландшафт, а тиша й ритм місця формують відчуття віддаленості від міського середовища без втрати зв’язку з ним.

Ключовим завданням проєкту було створення резиденцій з виразною, унікальною морфологією, що відрізняється від інших будинків у котеджному містечку «Lagom», і водночас — формування безпечної, камерної спільноти. Архітектура балансує між потребою в усамітненні та бажанням бути частиною цілісного середовища, де приватні простори логічно співіснують зі спільними сценаріями життя.

Просторова структура вибудована як послідовність шарів з поступово змінною відкритістю та приватністю. Ближче до в’їзду архітектура формує відчуття захищеності, у центральній частині простір більш відкритий, а глибока зона біля озера створює простір для індивідуальних сценаріїв та відкритості до природи.
Попри відмінності контексту, всі типології об’єднує чітко окреслена, відкрита вхідна зона, яка задає характер резиденції та формує її впізнаваність.

Між окремими просторовими лініями закладені пішохідні зв’язки, що природно ведуть мешканців до спільних зон — скверу та дитячого майданчика, залишаючи ці точки зустрічі частиною повсякденного, ненав’язливого життя комплексу.

Кожен будинок створює власний приватний простір, де тераси та озеленення легко адаптуються під різні потреби мешканців — від молодої пари до сімей чи літніх людей. Ділянка дозволяє обирати рівень відкритості та контакту з природою, одночасно зберігаючи приватність. Кожен куточок стає місцем для відпочинку, спілкування або усамітнення, підтримуючи різні сценарії щоденного життя.

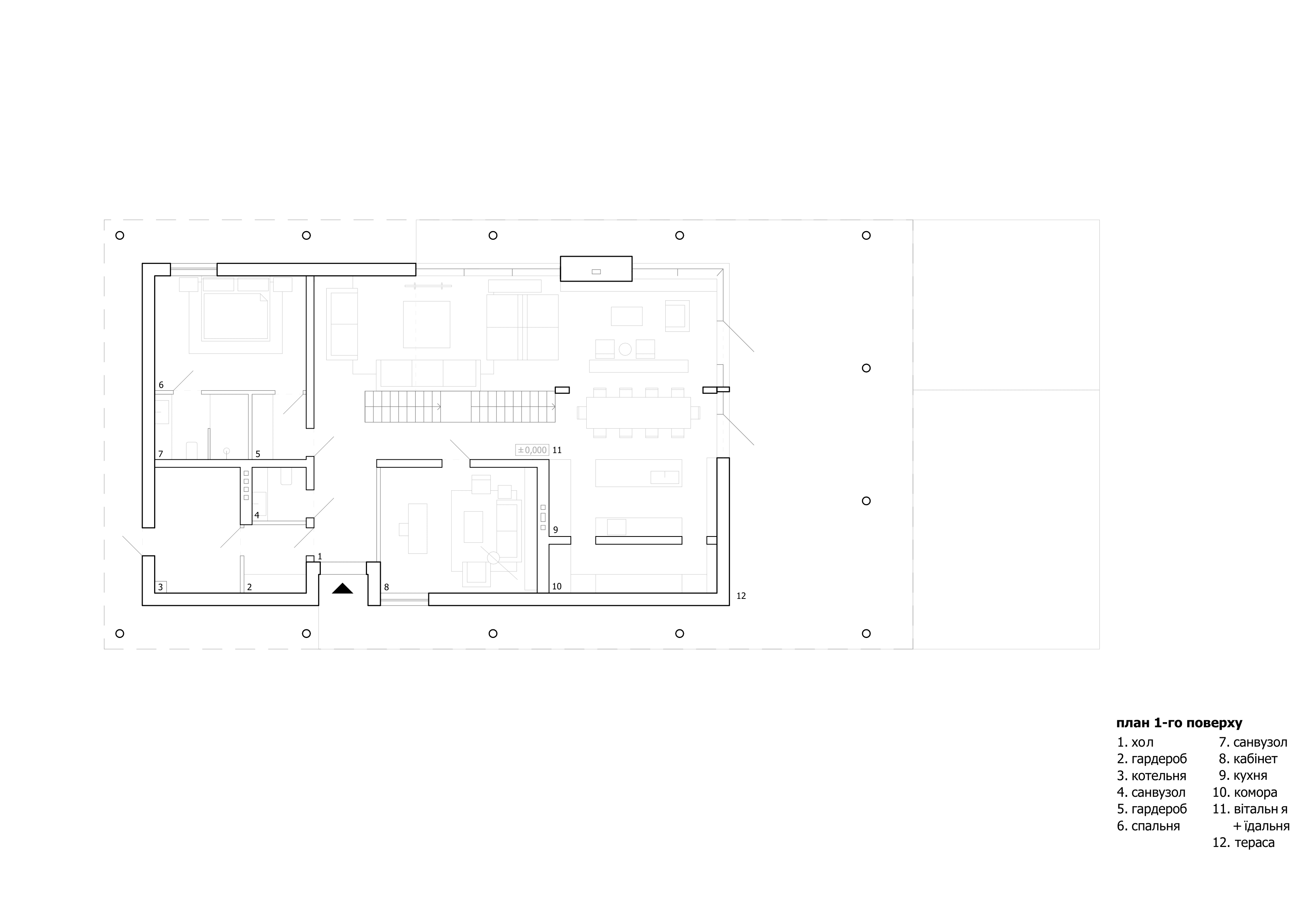
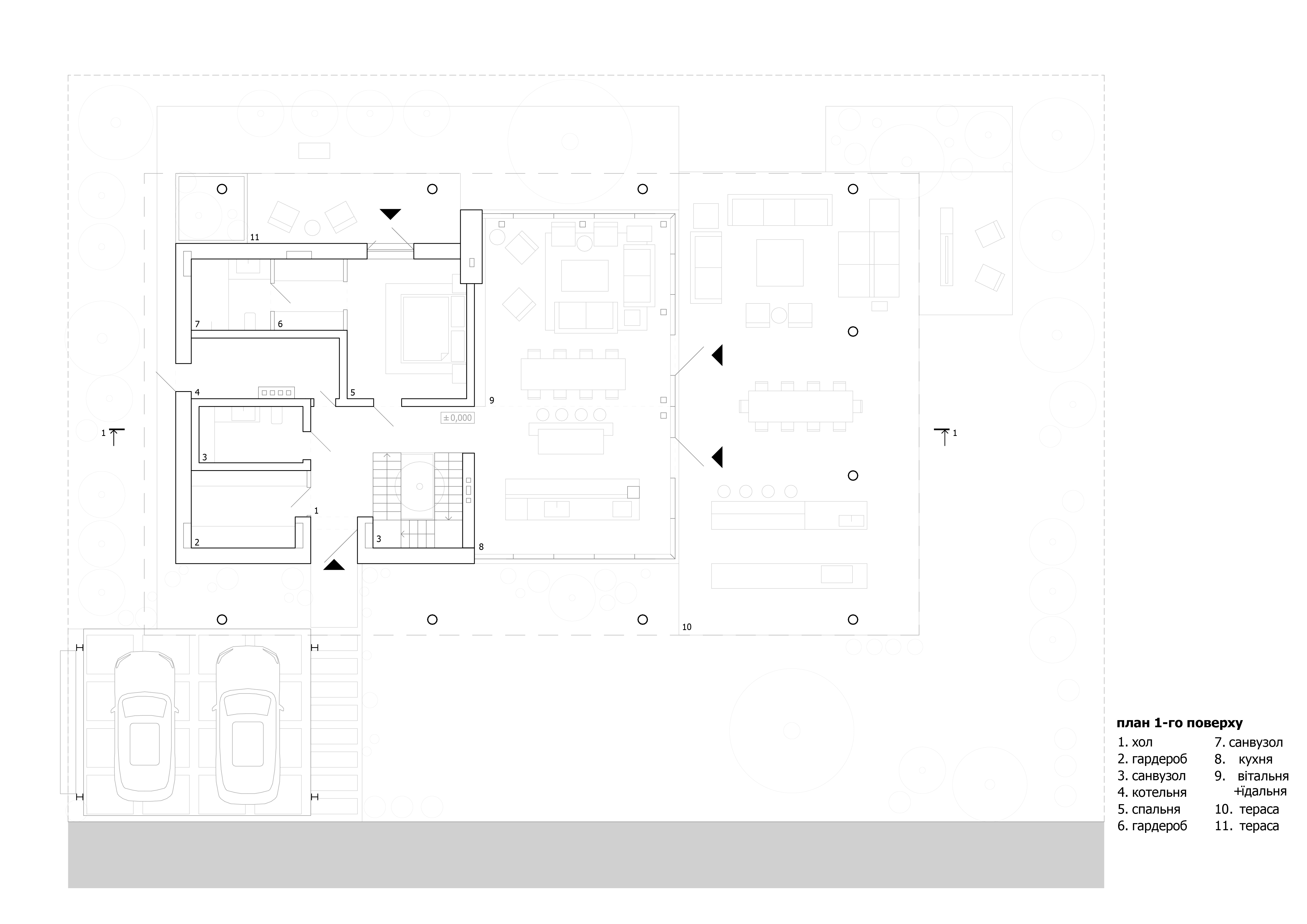
Будинок мислиться як простір щоденних сценаріїв — від ранкового контакту з природою на терасі до вечірнього усамітнення в захищеному просторі. Чисті, стримані об’єми з виразною горизонталлю даху формують відчуття легкості, а тонкі колони під дахом ніби ширяють, одночасно виконуючи технічну функцію: всередині них приховані ринви для водовідведення, що зберігає чистоту силуету будинку та його елегантність.

Скління зосереджене в спільних зонах, пропускаючи світло та відкриваючи краєвиди лише там, де відбувається основне життя, при цьому забезпечуючи приватність у спальній групі та допоміжних приміщеннях.
Планування продумане до дрібниць: «кишені» зелені забезпечують приватність, відкриті галявини — простір для активностей, а м’яке освітлення та природний ландшафт підсилюють атмосферу спокою та затишку. Тут архітектура не нав’язує стиль життя — вона його підтримує, створюючи комфортні, гнучкі та природні сценарії для кожного мешканця.

Архітектура підтримує ритм життя мешканця, роблячи його щоденні дії природними та комфортними. Світло, простір і природа стають частиною кожного моменту, а будинок створює відчуття гармонії та преміального комфорту.

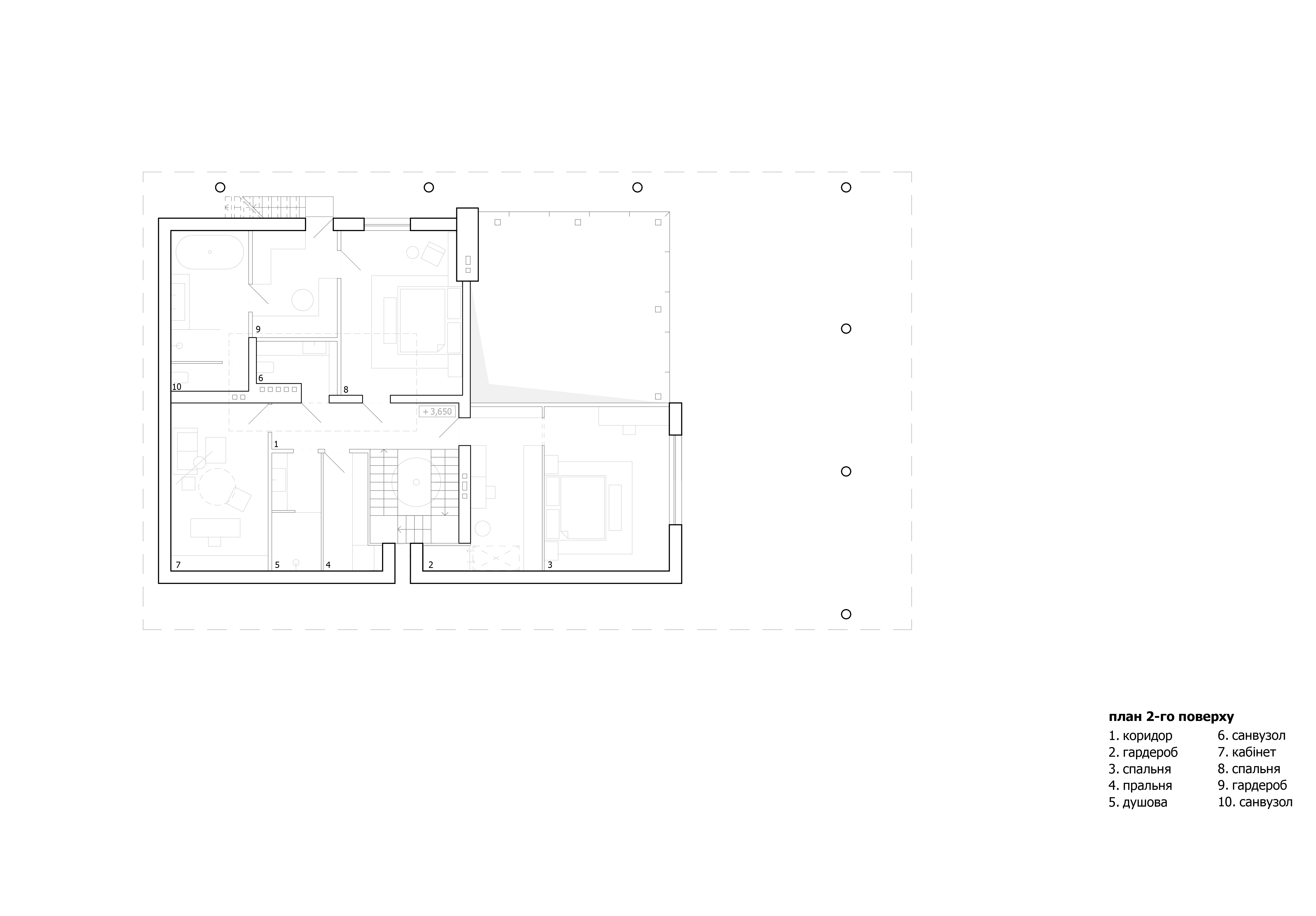
Інтер’єр резиденцій продовжує концепцію спокійної природності та зв’язку з навколишнім середовищем. Простора вітальня з каміном стає композиційним центром дому, де збираються сім’я та гості, а скульптурні акцентні сходи додають динаміки та візуальної глибини простору.
Мастер-спальні сплановані як приватні, світлі та камерні простори з власними гардеробними та продуманим склінням, яке відкриває краєвиди лише там, де це потрібно. У матеріалах переважають натуральний камінь, дерево та текстури, що створюють тактильний комфорт, підсилюють відчуття природності та підтримують атмосферу спокою і преміального затишку.
Інтер’єр — це продовження життя в будинку, де кожен елемент формує відчуття гармонії, функціональності та безпосередньої близькості до природи.

Провідний архітектор:

Юліан Чаплінський

Головний архітектор проєкту:

Віталій Квич

Архітекторка:

Дар’я Острікова

Конструктор:

Юрій Вибранець