Lagom Unique

Projects Residential buildings

Location

Sokilnyky, Lviv region

Year

2024 - 2027

Area

4306 m2

Lagom UNIQUE is a premium residential complex whose architecture builds a subtle dialogue between people and nature. The project is shaped around the idea of maximum engagement with the landscape while preserving privacy and the inner comfort of each resident.
The complex is located in a picturesque area with its own private lake in the suburb of Lviv, in the village of Sokilnyky. The natural surroundings become an integral part of the architectural narrative: the site offers panoramic views of the rural landscape, while the quietness and rhythm of the place create a sense of distance from the urban environment without losing connection to it.

The key objective of the project was to create residences with a distinctive, unique morphology that sets them apart from the other houses in the Lagom cottage community, while simultaneously shaping a safe, intimate neighborhood. The architecture strikes a balance between the need for privacy and the desire to be part of a cohesive environment, where private spaces naturally coexist with shared living scenarios.

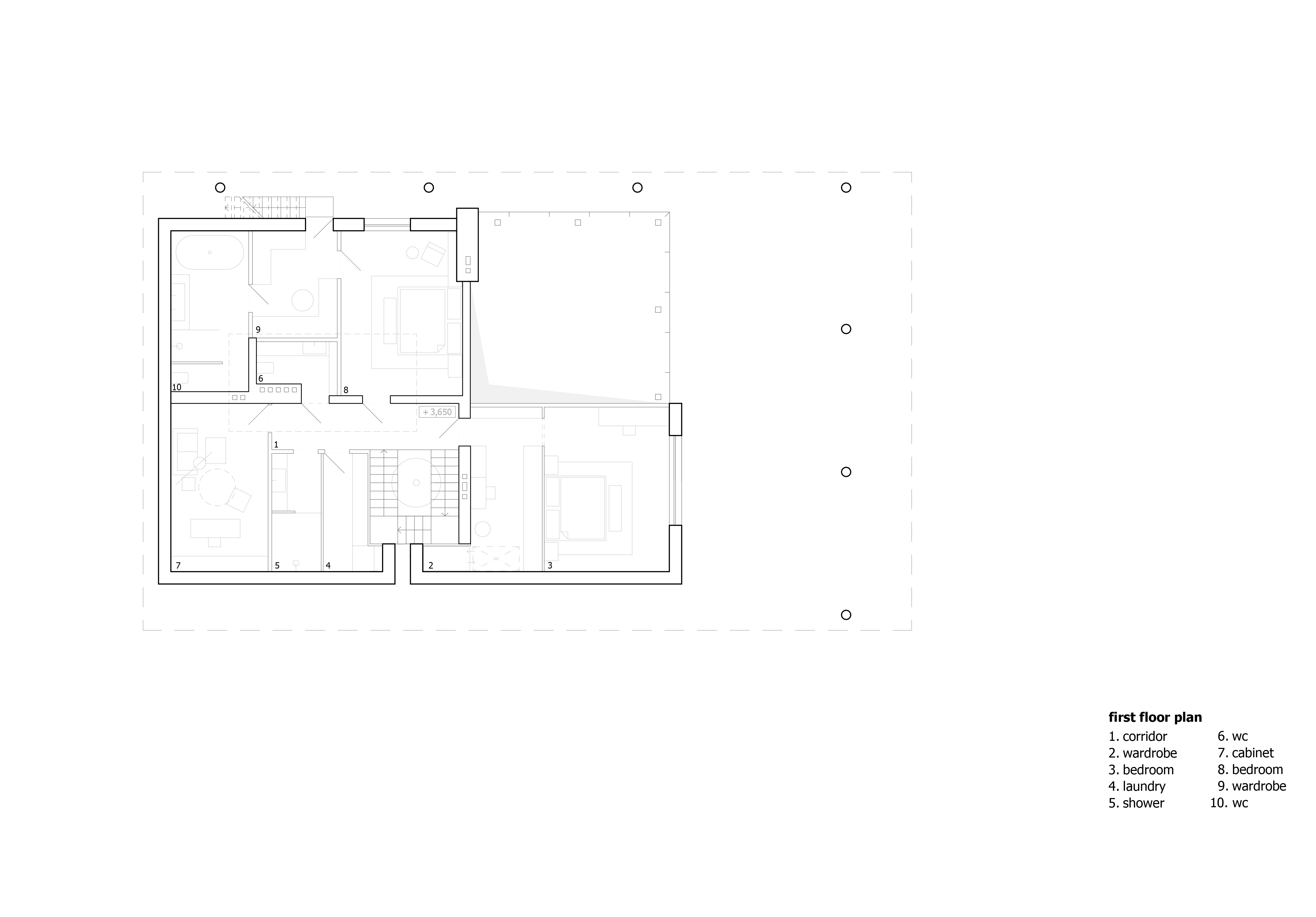
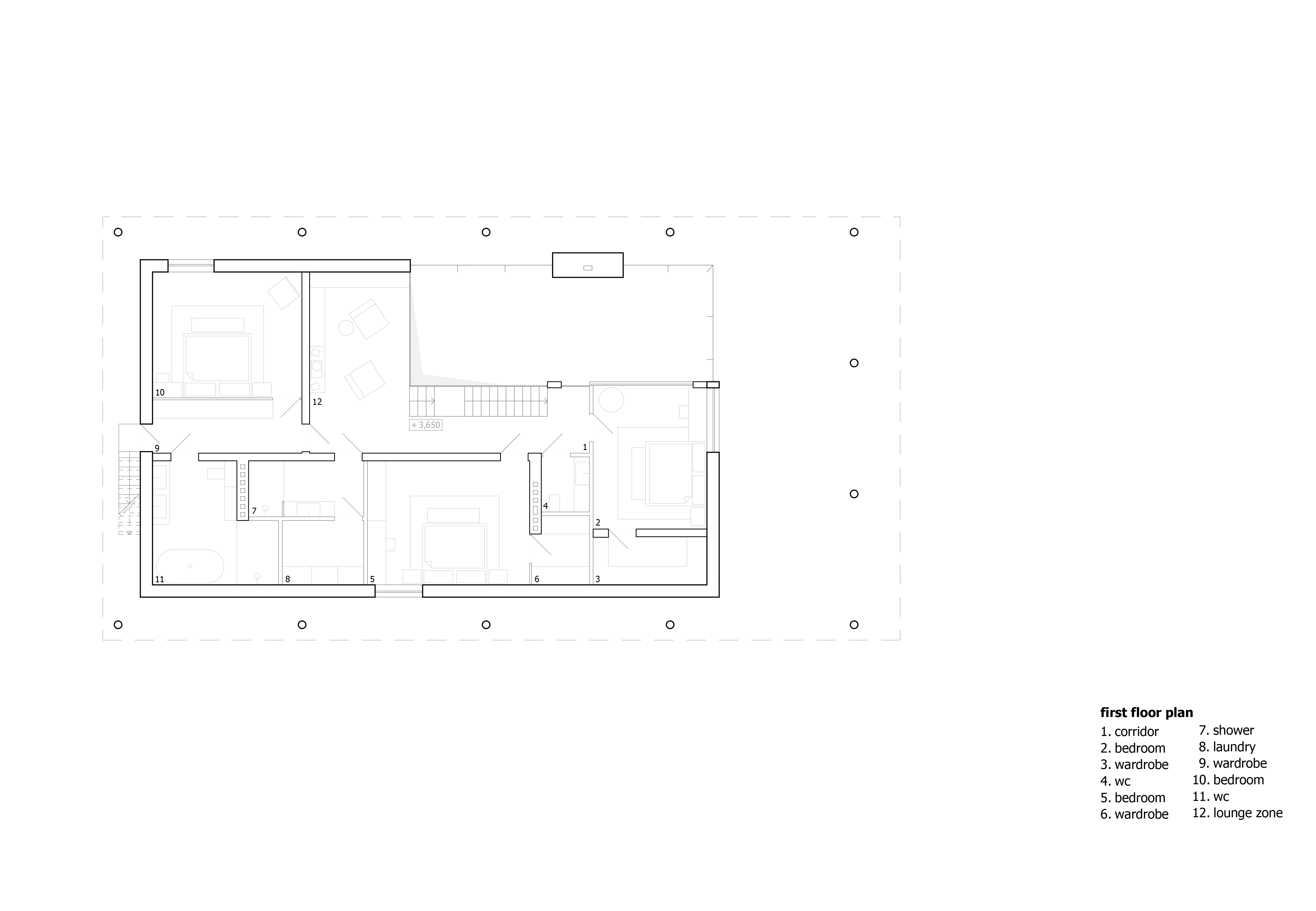
The spatial structure is conceived as a sequence of layers with gradually shifting degrees of openness and privacy. Closer to the entrance, the architecture creates a sense of protection; in the central area, the space becomes more open; while the deeper zone near the lake offers room for individual scenarios and a stronger connection to nature.
Despite contextual differences, all typologies are unified by a clearly defined, open entrance zone that sets the character of each residence and establishes its recognizability.

Pedestrian connections are embedded between the individual spatial lines, naturally guiding residents toward shared areas – the square and the children’s playground – while keeping these meeting points an organic, unobtrusive part of the complex’s everyday life.

Each house forms its own private realm, where terraces and landscaping can be easily adapted to the diverse needs of residents – from young couples to families or elderly people. The site allows residents to choose their desired level of openness and connection with nature while maintaining privacy. Every corner becomes a place for rest, interaction, or retreat, supporting a variety of everyday living scenarios.

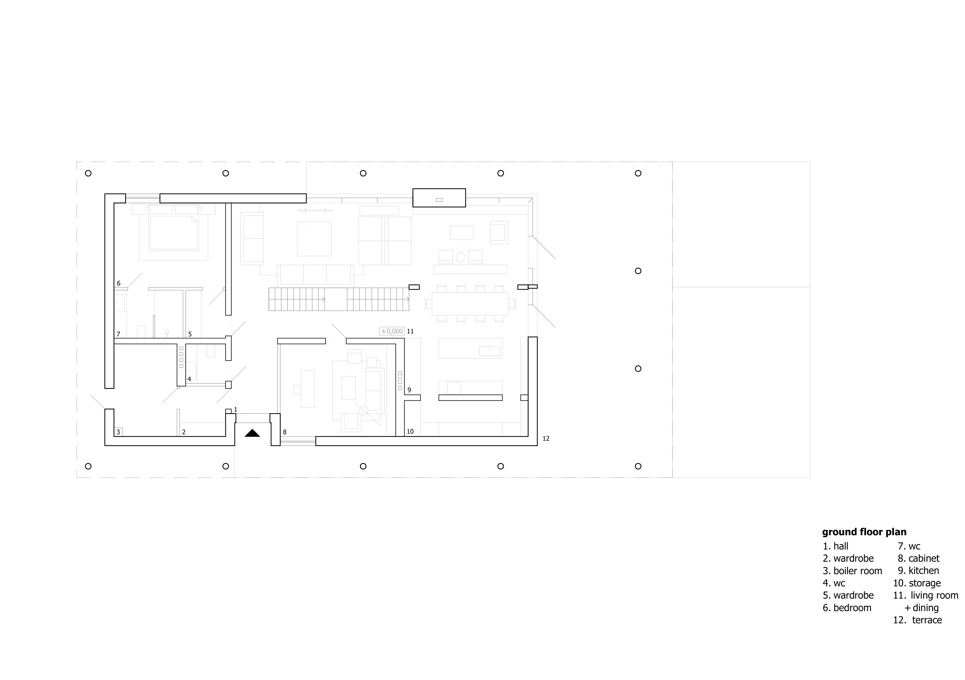
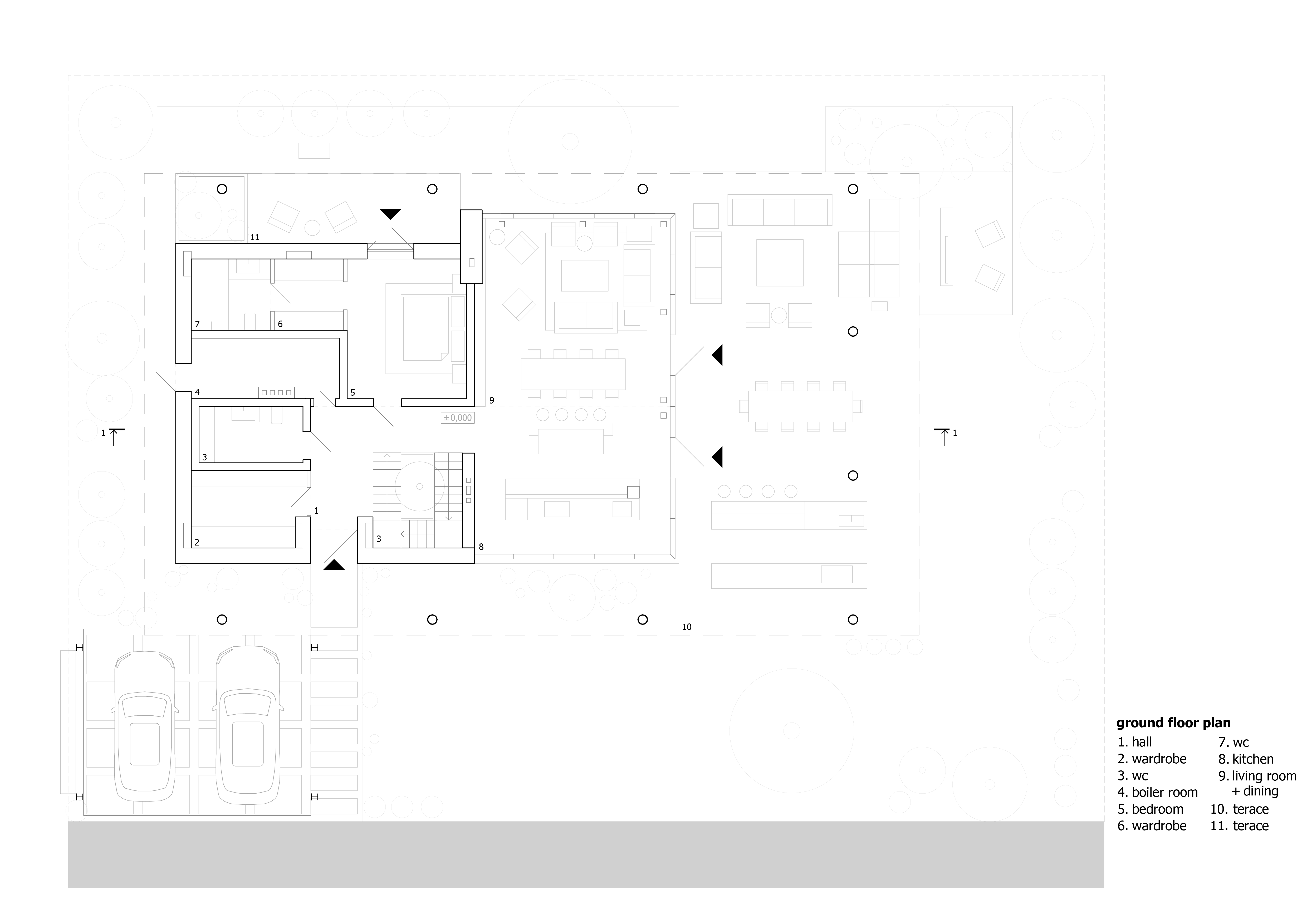
The house is conceived as a space for everyday scenarios – from a morning connection with nature on the terrace to evening retreat within a sheltered interior. Clean, restrained volumes with a pronounced horizontal roofline create a sense of lightness, while the slender columns beneath the roof appear to float, simultaneously serving a technical function: rainwater downpipes are concealed within them, preserving the clarity of the building’s silhouette and its overall elegance.

Glazing is concentrated in the shared areas, allowing light in and framing views only where daily life takes place, while maintaining privacy in the bedroom zone and auxiliary spaces.
The layout is carefully considered down to the smallest details: pockets of greenery provide privacy, open clearings create space for activities, and soft lighting combined with the natural landscape enhances a sense of calm and coziness. Here, architecture does not dictate a lifestyle – it supports it, creating comfortable, flexible, and natural living scenarios for each resident.

The architecture supports the rhythm of residents’ lives, making their daily routines feel natural and comfortable. Light, space, and nature become part of every moment, while the house fosters a sense of harmony and premium comfort.

The interiors of the residences continue the concept of serene naturalness and connection with the surrounding environment. The spacious living room with a fireplace serves as the compositional heart of the home, where family and guests gather, while sculptural accent stairs add dynamism and visual depth to the space.
The master bedrooms are designed as private, bright, and intimate spaces with their own walk-in closets and carefully planned glazing that frames views only where needed. Materials emphasize natural stone, wood, and tactile textures, enhancing a sense of comfort, reinforcing the feeling of nature, and supporting an atmosphere of calm and premium coziness.
The interior is a continuation of life in the house, where every element contributes to a sense of harmony, functionality, and a direct connection with nature.

Lead Architect:

Yulian Chaplinsky

Chief Project Architect:

Vitalii Kvych

Architect:

Daria Ostrikova

Structural Engineer:

Yurii Vybranets